Slander Door Slander Door

Automatic Industrial High Speed Roll up Sliding Stacking PVC Stacked Fast Door

Customization: Available
After-sales Service: Available
Warranty: 12 Months

Product Description

🔹 Basic Information
Model NO. HSFD-1
Material Aluminum Alloy
Type / Style Rolling
Opening Type Three-Button, Remote Control, Geomagnetic
Special Function Soundproof
Certification TUV, CCC, ISO9001, RoHS, CE
Opening Speed 1.2m/S (Opening), 0.8m/S (Closing)
Frame Material Painted Galvanized Steel / Aluminum Alloy
Safety Devices Wireless Safety Bottom Edge and Track Safety
🔹 Product Description
Intelligent Opening Solution: Advanced high-speed rolling doors designed for industrial efficiency.
High Speed Roll up Door
🔹 Product Show
PVC Door Solution Product Display
Material & Specification
Application Interior use in normal temperature environments
Size Range W: 5000-12000mm, H: 3000-9000mm
Door Curtain High-strength polyester fiber PVC, 0.8mm standard
Windows Standard row of windows, 1.5mm thickness
Wind Resistance 700Pa
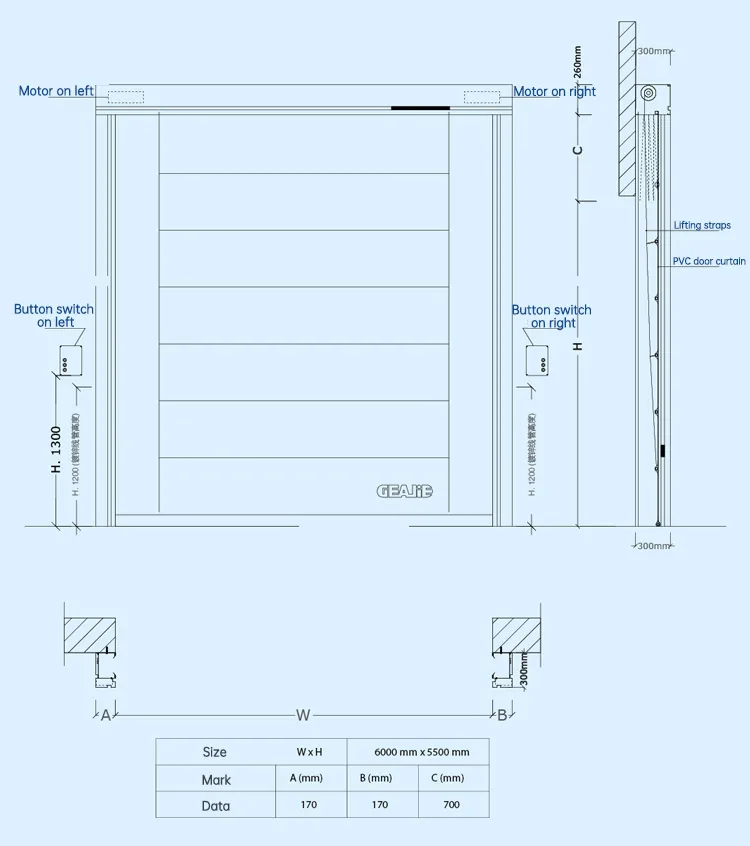
🔹 Structural Drawing & Options
Structural Drawing
PVC Fast Roll Door PVC Fast Pack Door
🔹 Product Advantages
☀️
Sun Protection: Effectively prevents strong light irradiation and UV rays, maintaining 100% sun blockage.
🌡️
Thermal Insulation: High-density polyurethane filling ensures excellent energy saving and thermal control.
🔇
Noise Reduction: Significantly reduces interference from busy streets or industrial zones.
🔒
Security: Designed with anti-burglar lock devices for maximum safety when closed.
🔹 Logistics & Equipment
Dock Leveler Loading Dock
🔹 Workshop & Production
Factory View Workshop Production Line
❓ Frequently Asked Questions
What is the Minimum Order Quantity (MOQ)?
The MOQ is 1 set, making it accessible for both small and large projects.
What are the maximum available sizes for these doors?
We can produce doors with a maximum length of 6.5 meters and a maximum width of 6 meters, fully adjustable to your needs.
Is the installation process difficult?
No, our products are designed for easy installation. We provide clear guidance to ensure a smooth setup.
Where are dock levelers typically used?
Dock levelers are ideal for factory outlets, logistics parks, and any port involving high-frequency outgoing cargo.
How does a dock leveler improve efficiency?
It bridges the gap between the warehouse and transport vehicles, making the loading and unloading of goods faster and safer.
Do you offer OEM services or custom products?
Yes, OEM is highly welcomed. We produce many parts in-house to strictly control quality and offer competitive pricing.

Related Products